The offer to purchase must meet or exceed the sale price.
Price
$66,000.00
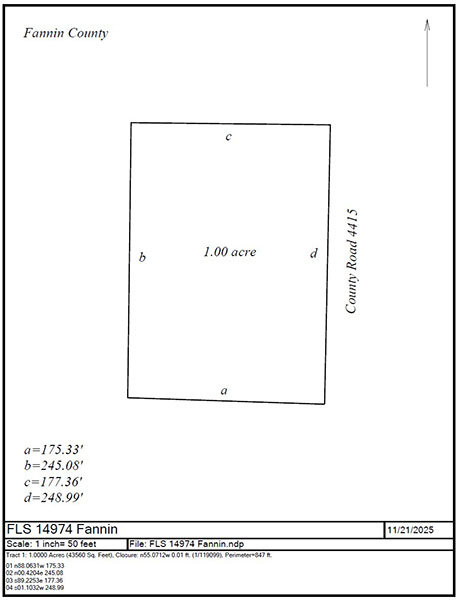
Total Acreage
1.0000
County
Fannin
Tract Number
14974
A Veteran or Military Member whose bid is accepted may apply for a VLB Land Loan at a 7.25% interest rate, with a 30-year term and minimum 5% down payment. The VLB will only finance up to 95% of the minimum bid or $150,000 whichever is less. Any amount offered over the minimum bid or $150,000.00 must be paid at closing by the awardee. The maximum loan amount offered through the VLB Land Loan Program may not exceed $150,000. FLS tracts may be pulled from the sale solely at the discretion of the Veterans Land Board.
Legal Description
1.000 acre tract situated in the E.T. Embree Survey, Abstract No. 357, Fannin County, Texas. Substitute Trustee's Sale Deed, filed for record 07/24/2025, Document# FILED-2025000043; CAD PID 132051
Tract Dimensions
a=175.33' b=245.08' c=177.36' d=248.99'
Location
From the intersection of Hwy 69 and Hwy 121 in Trenton, TX, travel NW on Hwy 69 for 0.6 miles to CR 4415. Turn left on CR 4415 and travel W 0.6 miles to F C Rd 4450. Turn left on F C Rd 4450 and travel S for 0.5 miles to CR 4415. Turn right on CR 4415 and travel W for 1.0 mile then N or 0.4 miles and the subject will be on the left. Tract is not located within a flood plain. Approximate GPS Coordinates: 33.444118, -96.373086
Account Number
238544
Contact
VLB
1700 N. Congress Ave. Suite 810
Austin, TX 78701
800-252-8387
512-463-5060
vlbinfo@glo.texas.gov
